$1,402,000
$1,402,000
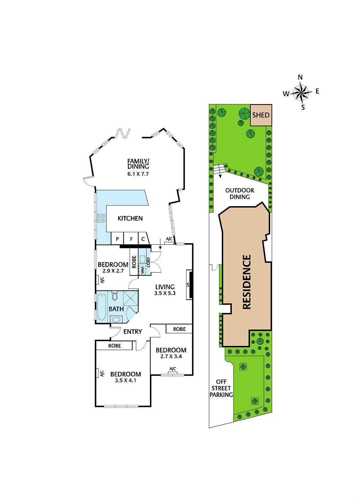
3 Wiseman Street HAWTHORN EAST

3 Wiseman Street HAWTHORN EAST

3
Bedroom
1
Bathroom
1
Parkings
320sqm
Land Area

The rating for this property is undisclosed.

If you would like to know more about this property, please contact us

Get in touch with James Buy Sell today for a confidential discussion about your next real estate move.

During a confidential initial phone call, we’ll learn about you and what you’re looking to achieve, take you through our full-service approach, and explain how we achieve results others can’t.

Call us on 03 9804 3133 or leave your details below and we’ll be in touch.




Market News

Every Monday, keep up to date on Top End News from Hawthorn to Toorak to Brighton to Albert Park and all of Top End Melbourne.

Our Results

Interactive Map of home bought and sold by James Buy Sell – click to explore.

Our Clients

Ali and Craig Tiley had relocated to Melbourne from the US and were unfamiliar with the local property market. They were looking for support to demystify the Australian way of buying and selling property which is very different to the US model they knew.

We developed a shortlist of potential homes and a buy recommendation. By encouraging them to look beyond initial impressions and consider the inherent value of the home they chose to purchase, Ali and Craig were able to buy into a premium Brighton location two minutes from the action.

Read more testimonials here