
|
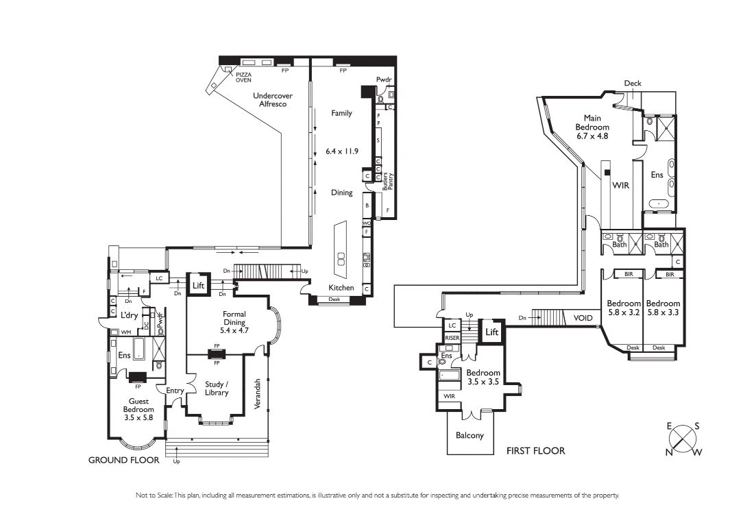
5
Bedroom
|
6
Bathroom
|
|
|
8
Parkings
|
1,140sqm
Land Area
|
|
Every Monday, keep up to date on Top End News from Hawthorn to Toorak to Brighton to Albert Park and all of Top End Melbourne.
;)
Manners, ethics, decency. I know they are not trendy at the top levels of life right now, but they still work, they still grease the wheels of life very effectively.
<...;)
How do you sell your property – become one of the three out of ten that actually transact — and simultaneously buy one of the seven that aren’t moving? How do you ...
;)
Homes are still being fiercely contested at auction when priced correctly. And homes are rotting on market for half a year when overpriced at an EOI.
Interactive Map of home bought and sold by James Buy Sell – click to explore.
Ali and Craig Tiley had relocated to Melbourne from the US and were unfamiliar with the local property market. They were looking for support to demystify the Australian way of buying and selling property which is very different to the US model they knew.
We developed a shortlist of potential homes and a buy recommendation. By encouraging them to look beyond initial impressions and consider the inherent value of the home they chose to purchase, Ali and Craig were able to buy into a premium Brighton location two minutes from the action.
Read more testimonials here